Аренда помещения свободного назначения

400 000 ₽/мес

1 495 ₽ за м²/мес.

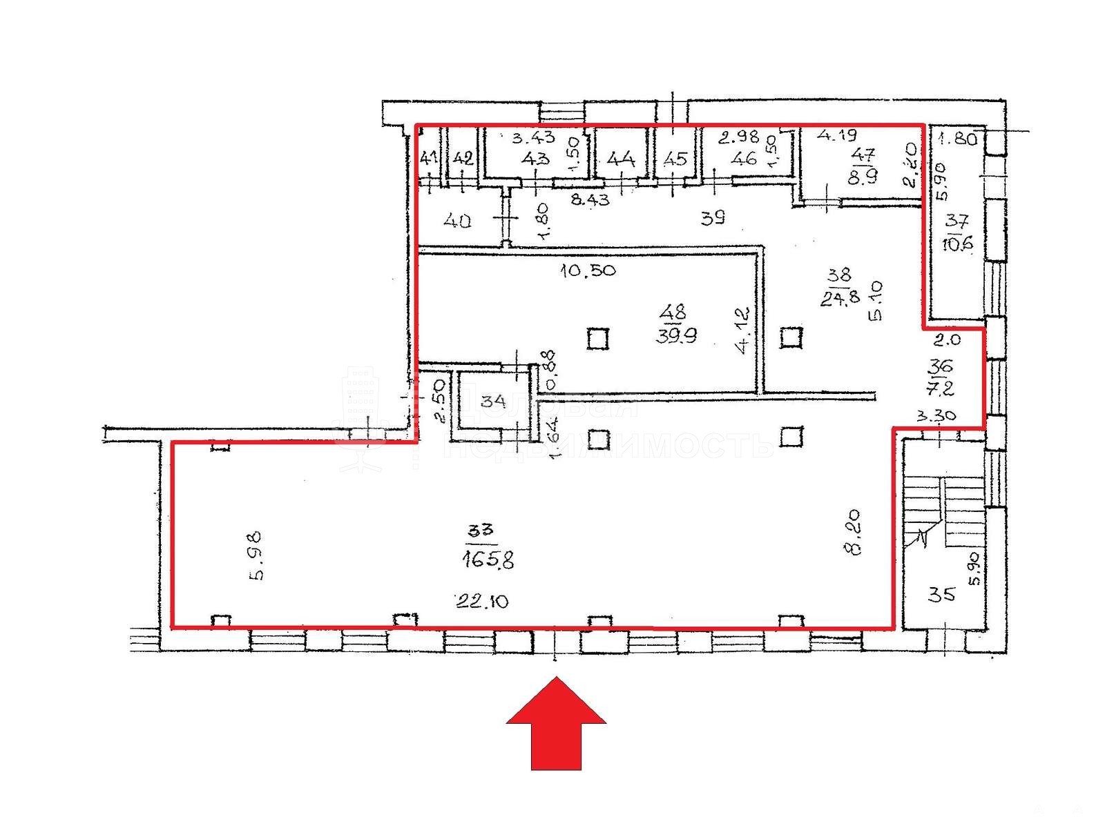
268 м²
Площадь
1/2
Этаж

Поделиться

Добавить в избранное

Предлагается в аренду помещение с вытяжкой в центре города, площадь 267, 6 кв.м

Прямая аренда от собственника без комиссии!

Характеристики:

- центр города;

- высокий автомобильный и пешеходный трафик;

- отдельно стоящее здание;

- зальная планировка,

- свой С/У.

- закрытая парковка под шлагбаумом;

- пожарная, охранная сигнализация;

- видеонаблюдение;

- рядом остановки общественного транспорта;

- развитая инфраструктура района;

- возможна аренда этажа.

Коммуникации:

- отопление;

- вытяжка

- электричество;

- вода/канализация;

- телефон/интернет.

Стоимость аренды - 400 000 руб. в месяц (1494 руб./м2)

>> >> >> ВАЖНО!!! ВАЖНО!!! ВАЖНО!!! << << <<

> Мы гарантируем финансовую безопасность наших клиентов.

> Занимаемся не только коммерческой но и жилой недвижимостью.

> Поможем в одобрении ипотечного кредита, бесплатно проконсультируем по подбору наиболее выгодной кредитной программы.

> Юристы, которые трудятся в нашей компании имеют огромный опыт проведения сделок с коммерческой недвижимостью.

> АН Деловая недвижимость действующий участник гильдии риэлторов Великого Новгорода и НО, наши специалисты прошли аттестацию Российской гильдии риэлторов.

> Работай с профессионалами

Дата обновления: 22 января 2026